
מיקום הפרוייקט:
- קיבוץ חוקוק, ישראל
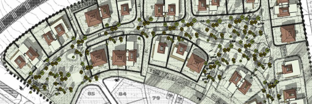
שטח:
- 30000 מ"ר
שטח בנוי:
- 29 מגרשים של 500 מ"ר
שנת תכנון:
- 2009
פרוגרמה:
- כפר אקולוגי בהרחבה של קיבוץ חוקוק
כפר אקולוגי חוקוק, הינו הרחבה של קיבוץ חוקוק בכינרת. 30 מגרשים של 600 מ"ר כהתאגדות של 30 משפחות עצמאיות, אמנים ואנשי רוח בעלי מודעות לסביבה, אשר מחפשים ליצור כפר אקולוגי ולחיות בקהילה בת קיימא שמטרותיה להגביר מעורבות חברתית מתוך אחריות לסביבה, ויצירת קשר לאדמה המציע מודל לחיי קהילה אלטרנטיביים עם ערכים אקולוגיים, תוך מזעור השפעת האדם על הסביבה הקיימת. תוכננו במקור 3 דגמים צומחים, כאשר כל אחד יכול להתאים את גודל המבנה לצרכיו ולתקציבו וגם להוסיף למבנה בעתיד חדרים נוספים לפי הצורך. שלד המבנים תוכנן בשיטת בניה CASA-tech. שיטה זו תוכננה ע"י משרדנו והיא מתבססת על שילוב קונסטרוקטיבי בין בטון, פלדה ועץ, ובשילוב מערכת קירות וגגות רב שכבתיים. תושבי הקהילה לוקחים חלק בבניית בתיהם ע"י שימוש בחומרים מקומיים כמו טיח אדמה, אבן מקומית וחומרים ממוחזרים, כל אחד ע"פי דרכו וסגנונו, וכל מבנה מוקם במגרש ללא קווי בניה מוגדרים. כל זאת על מנת לתת זהות אינדיבידואלית לכל מגרש. המבנים הם בעלי מערכות אקולוגיות פסיביות ע"פ דרך העמדת המבנה בקרקע, תוך התחשבות בגורמי אנרגיה של שמש ורוח תוך הצללות נכונות, חשיפה מינימאלית לשמש ושימוש באור טבעי. אוורור טבעי במבנים מתבצע ע"י יצירת פתחים לפי משטר הרוחות הקיים, אוורור עליון לשחרור אוויר חם, שימוש בחומרים ממוחזרים, שימוש במערכות מים אפורים, שירותי קומפוסט ועוד… תכנון והרכבת המבנה מתבססים על שילוב חלקים מודולרים (LEGO) המיוצרים במפעל בשיטת ייצור סדרתית, ומורכבים בזמן קצר בעזרת חיבורים יבשים בשטח .לפיכך, מבנה זה הוא מבנה המוגדר אקולוגי במהותו הן מבחינת חומר, הן מבחינת מערכות אקולוגיות אקטיביות ופסיביות, והן מבחינת החסכון באנרגיה בייצורו ואופן בנייתו.

